PORTFOLIO

Great places for real people.

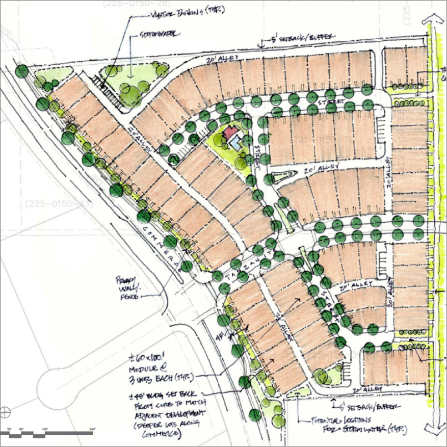
Annadel

Santa Rosa, CA

Sunset Electric

Seatle, WA

Bailey Farm Apartments

Bothel, WA

Capitol Yards

West Sacramento, CA

Catania

Broomfield, CO

Capstone at Vallagio

Centennial, CO

Sacramento Essential Workforce Housing

Sacramento, CA